Construction Docs

Underground Electrical Duct Bank & Stub-Up Installation

Florida, USA

Project Overview

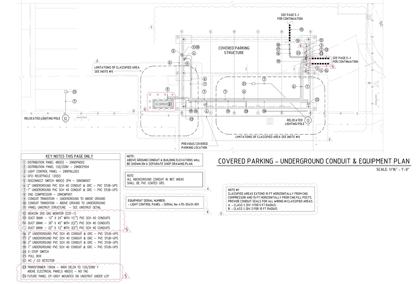
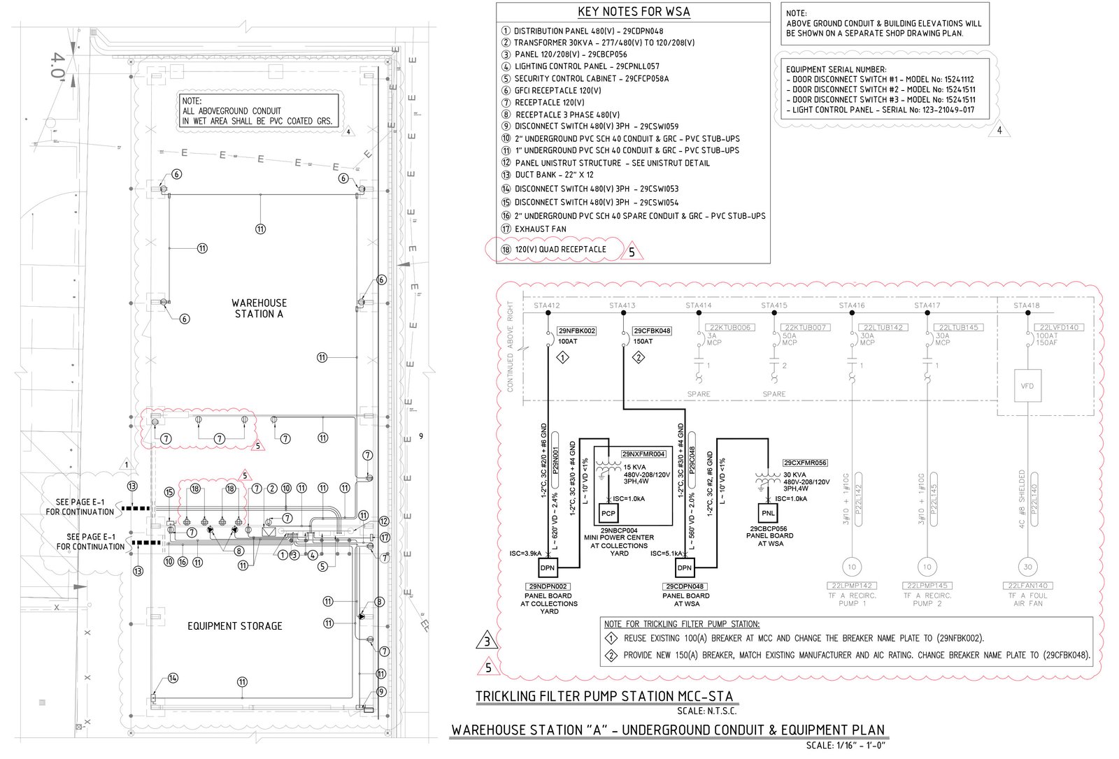
This project documents the design and installation of a multi-system underground electrical duct bank serving two zones of a large-scale commercial site: the main building (WSA) and the Covered Parking structure. Both systems were designed using PVC Schedule 40 conduits encased in concrete, providing a protected and code-compliant underground pathway for power distribution infrastructure.

The installation included precision stub-up transitions where underground PVC conduits transition to Galvanized Rigid Conduit (GRC) above grade at equipment pads and service connection points. A comprehensive grounding electrode system was incorporated throughout the duct bank run. The documentation package includes site plans, isometric drawings, cross-section details, stub-up distance layouts, electrical details, and field-verified job site photography.

Technical Scope

  • PVC Schedule 40 conduit duct bank layout — WSA zone
  • PVC Schedule 40 conduit duct bank layout — Covered Parking zone
  • Concrete-encased bank sections and cross-sectional details
  • Isometric routing diagrams for both systems
  • Stub-up distance plans and transition to GRC above grade
  • Grounding electrode system integration
  • Electrical detail sheets for conduit sizing and installation
  • Field documentation with job site photography

Project Details

Category
Electrical Construction Documentation
System Type
Underground Duct Bank / Power Distribution
Conduit Material
PVC Schedule 40 (underground), GRC (above grade)
Encasement
Concrete-encased per NEC
Location
Florida, USA

Drawing Set & Site Documentation

WSA Duct Bank – Plans, Isometrics & Sections

Duct Bank Site Plan

Duct Bank Site Plan

WSA Power Supply Duct Bank

WSA Power Supply Duct Bank

WSA Power Isometric

WSA Power Isometric

WSA Stub-Up Distance Plan

WSA Stub-Up Distance Plan

WSA Power Section 1

WSA Power Section 1

WSA Power Section 2

WSA Power Section 2

WSA Power Section 3

WSA Power Section 3

WSA Power Section 4

WSA Power Section 4

WSA Power Section 5

WSA Power Section 5

Covered Parking Duct Bank – Plans, Isometrics & Sections

Covered Parking Duct Bank Plan

Covered Parking Duct Bank Plan

Covered Parking Isometric

Covered Parking Isometric

Covered Parking Section 1

Covered Parking Section 1

Covered Parking Section 2

Covered Parking Section 2

Stub-Up Distance Plan 1

Stub-Up Distance Plan 1

Stub-Up Distance Plan 2

Stub-Up Distance Plan 2

Electrical Details Sheet 1

Electrical Details – Sheet 1

Electrical Details Sheet 2

Electrical Details – Sheet 2

Job Site Photography

Underground Duct Bank Job Site Photo 1

Job Site Photo 1

Underground Duct Bank Job Site Photo 2

Job Site Photo 2

Underground Duct Bank Job Site Photo 3

Job Site Photo 3

Underground Duct Bank Job Site Photo 4

Job Site Photo 4

Underground Duct Bank Job Site Photo 5

Job Site Photo 5

Underground Duct Bank Job Site Photo 6

Job Site Photo 6

Underground Duct Bank Job Site Photo 7

Job Site Photo 7

Underground Duct Bank Job Site Photo 8

Job Site Photo 8

Underground Duct Bank Job Site Photo 9

Job Site Photo 9