Construction Docs

Electrical Lighting System Installation Documentation

Florida, USA

Project Overview

This project provides complete installation documentation for an LED-based electrical lighting system at a large commercial facility (WSA). The scope covers both indoor and outdoor luminaire installations, high-voltage and low-voltage circuit routing, and the design and integration of a Light Control Panel (LCP) with relay modules to manage zone switching and dimming.

Lighting plans were developed for interior spaces and exterior areas including surface-mounted, pendant, and Unistrut-mounted fixtures. Conduit routing uses rigid metal conduit (RMC) throughout the installation. The documentation package includes photometric studies for interior and emergency conditions, a full outdoor photometric simulation, total demand load calculations, and a job site photo record confirming as-built conditions.

Technical Scope

  • LED interior lighting plan — general and high-voltage areas
  • LED interior lighting plan — low-voltage areas
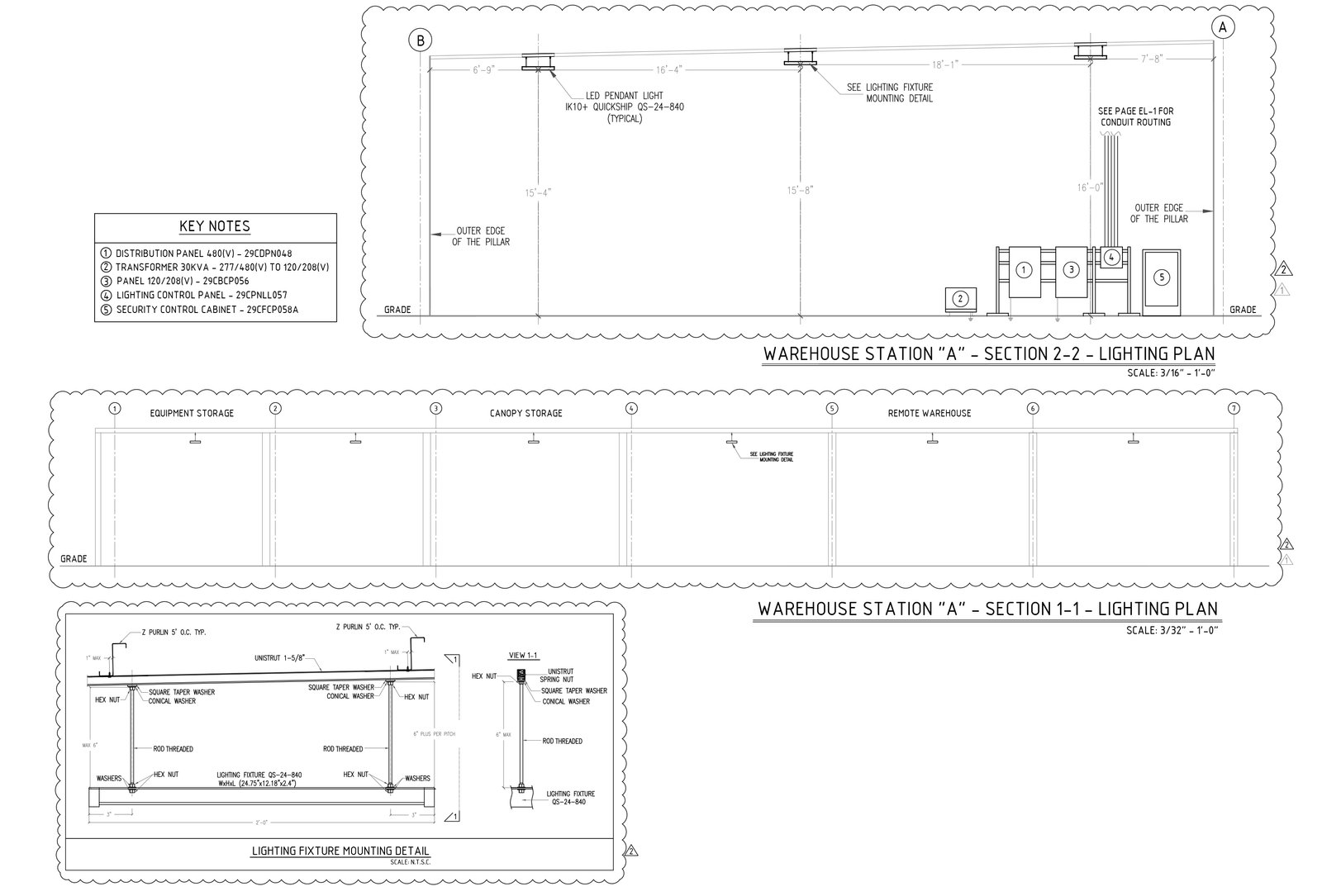
  • Building section lighting layout and fixture scheduling
  • Indoor photometric analysis and emergency lighting coverage
  • Outdoor photometric study and simulation
  • Light Control Panel (LCP) power feed from High Voltage distribution
  • Rigid metal conduit routing and Unistrut fixture mounting details
  • Total demand load calculations for lighting circuits
  • Site plan photometric layout for exterior compliance
  • Job site photo documentation of completed installation

Project Details

Category
Electrical Construction Documentation
System Type
LED Lighting / Control System
Key Component
Light Control Panel (LCP) with relay modules
Conduit
Rigid Metal Conduit (RMC)
Mounting
Unistrut channel support system
Location
Florida, USA

Drawing Set & Field Documentation

Lighting Plans, Sections & Calculations

WSA Lighting Plan

WSA Lighting Plan

WSA Lighting Plan High Voltage

Lighting Plan – High Voltage

WSA Lighting Plan Low Voltage

Lighting Plan – Low Voltage

WSA Lighting Section

Lighting Section

WSA Indoor Photometric Analysis

Indoor Photometric Analysis

WSA Outdoor Photometric Analysis

Outdoor Photometric Analysis

WSA Outdoor Photometric Emergency Lighting

Outdoor Photometric – Emergency

Total Demand Load Calculations

Total Demand Load Calculations

High Voltage to Light Control Panel

High Voltage to LCP

Site Plan Photometric Layout

Site Plan Photometric Layout

Photometric Simulation

Photometric Simulation

Job Site Photography

Electrical Lighting System Job Site Photo 1

Job Site Photo 1

Electrical Lighting System Job Site Photo 2

Job Site Photo 2

Electrical Lighting System Job Site Photo 3

Job Site Photo 3

Electrical Lighting System Job Site Photo 4

Job Site Photo 4

Electrical Lighting System Job Site Photo 5

Job Site Photo 5

Electrical Lighting System Job Site Photo 6

Job Site Photo 6

Electrical Lighting System Job Site Photo 7

Job Site Photo 7

Electrical Lighting System Job Site Photo 8

Job Site Photo 8

Electrical Lighting System Job Site Photo 9

Job Site Photo 9