Architectural Detailing Projects
Precision construction documentation and execution planning across residential, healthcare, and large-scale residential developments.
Project Portfolio
Representative architectural detailing and construction documentation from completed projects.
Clinic Eichstätt – New Construction, Conversion and Refurbishment
Eichstätt, Bavaria, Germany
AR Design LLC provided full execution planning services (HOAI Phase LPH 5) for the new construction, conversion, and refurbishment of key medical areas within the hospital complex in Eichstätt, Bavaria.
The scope included the new construction and restructuring of the surgical department with three new operating theatres, the expansion of the emergency department, and the redesign of the central admission area. Particular emphasis was placed on integrating highly technical medical infrastructure, ensuring compliance with strict healthcare regulations, and coordinating multiple disciplines within a complex hospital environment.
Through precise detailing and structured coordination, the execution planning ensured constructability, cost control, and adherence to schedule, while maintaining the operational requirements of the clinic throughout the planning process.
Project Highlights
- ✓HOAI LPH 5 – Full execution planning responsibility
- ✓New surgical department with three operating theatres
- ✓Emergency department expansion and reconfiguration
- ✓Central admission area redesign
- ✓Highly technical medical infrastructure integration
- ✓Multi-discipline coordination in live hospital environment
- ✓Healthcare regulation compliance throughout
- ✓Detailed construction documentation for all building elements
This project demonstrates AR Design LLC's capability to deliver precise, regulation-compliant execution planning documentation for complex healthcare facilities under demanding operational conditions.
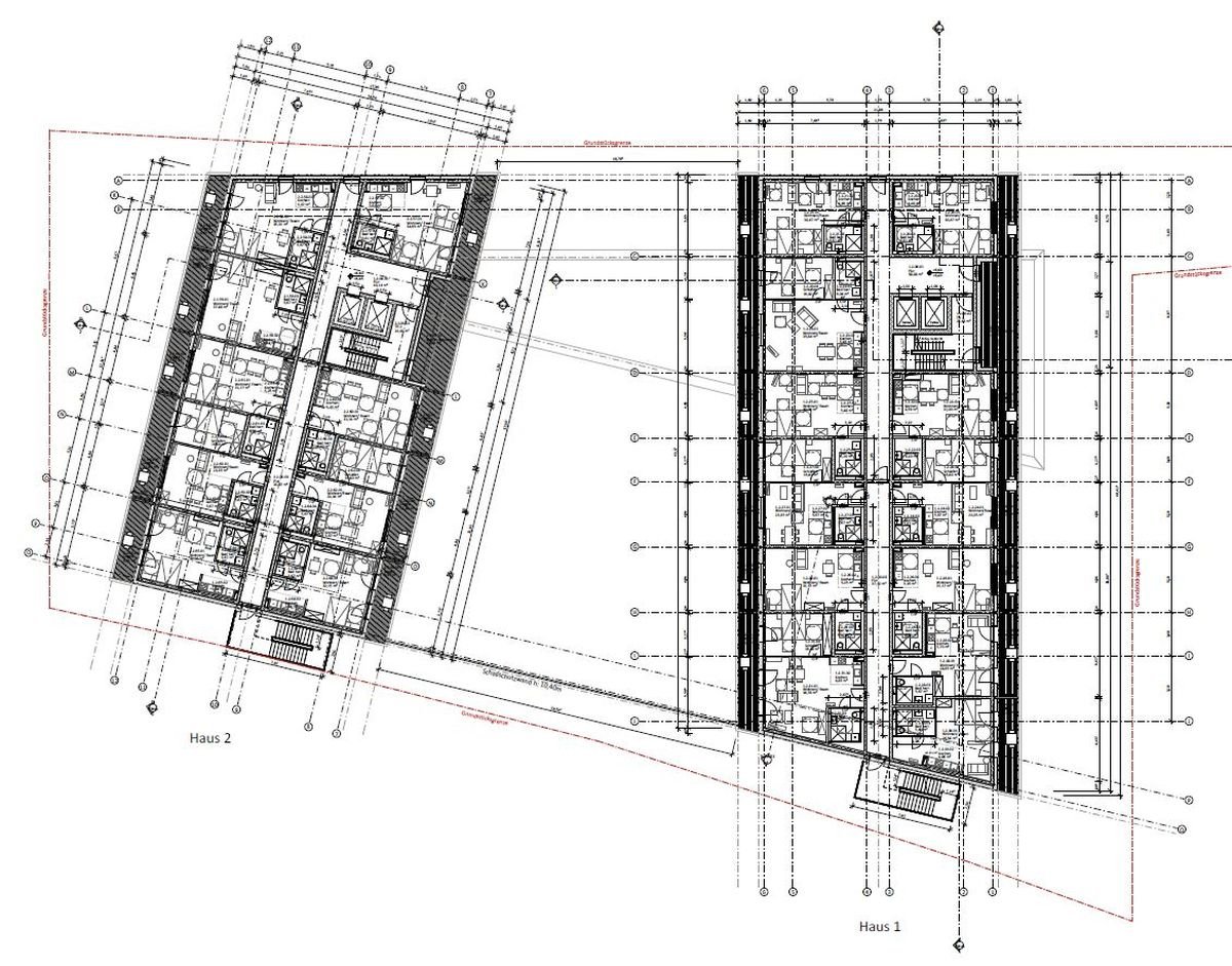
Senior Living Park, Feldkirchen
Feldkirchen, near Munich, Germany
The Feldkirchen Senior Living Park offers high-quality, safe, and comfortable living space for an independent life in old age. Located in a quiet setting on the green western edge of Feldkirchen, just outside Munich, the complex is ideally connected to the public transport network.
The new building comprises 58 senior apartments with one to three rooms, each featuring a balcony or terrace. The apartments are generously proportioned and designed to meet a wide range of individual needs. In addition, the ground floor includes two day-care units as well as spacious, multifunctional communal areas for leisure and social activities.
The entire building is fully barrier-free, allowing residents to move freely and safely even with limited mobility. An underground car park provides additional comfort and security. The health area includes multifunctional treatment rooms as well as a fitness studio for exercise classes and physiotherapy.
Project Highlights
- ✓58 senior apartments – one to three rooms with balcony or terrace
- ✓Two ground-floor day-care units
- ✓Multifunctional communal areas and multi-purpose room with kitchenette
- ✓Fully barrier-free design throughout
- ✓Underground car park for residents
- ✓Health area with treatment rooms and fitness studio
- ✓In-house outpatient care service integration
- ✓Facade section and detail documentation
This project demonstrates AR Design LLC's ability to deliver barrier-free residential architecture with integrated care infrastructure, combining technical rigour with a human-centred design approach.
Z Ost – Zschokkestraße East, Munich
Munich, Germany
Located in the western part of Munich, close to the Westendstraße underground station, the Z Ost project forms part of a new residential quarter developed between Zschokkestraße and Wilhelm-Riehl-Straße. The guiding motto of the complex — "Together, at Home, Zschokkestraße" — captures its community-centred philosophy.
The Zschokkestraße East sub-area comprises 110 apartments and 17 co-living units, developed as a privately financed rental housing project with an underground car park of 69 spaces. Towards the outside, the residential block presents itself with clear, defined edges, while towards its centre it gradually dissolves—the strongly articulated, folded, and recessed volumes create several interconnected inner courtyards flowing seamlessly into one another.
Community plays a central role: in addition to the residential units, the project integrates a retail space, shared community rooms, and an on-site daycare centre.
Project Highlights
- ✓110 apartments and 17 co-living units
- ✓Underground car park – 69 spaces, parking ratio 0.5
- ✓Articulated, folded building volumes with inner courtyards
- ✓North–south and west–east pedestrian permeability
- ✓Ground-floor retail space and shared community rooms
- ✓Integrated daycare centre
- ✓Comprehensive facade detailing and window details
- ✓Construction commenced spring 2021
This project demonstrates AR Design LLC's expertise in large-scale urban residential documentation, combining community-driven planning principles with technically rigorous construction detailing.
Need Architectural Detailing for Your Project?
From execution planning to high-fidelity construction documentation — we deliver precision at every scale.
Request a Consultation Architectural Detailing Service